Budynek Mieszkalny Wielorodzinny przy ul. Fundacyjnej 1/4 w Gdańsku

Projekt Architektoniczno-Budowlany

Rewitalizacja Dolnego Miasta w Gdańsku to proces, który przekształca historyczną dzielnicę w nowoczesne, zrównoważone środowisko miejskie. Dzięki inwestycjom w infrastrukturę i przestrzeń publiczną oraz działaniom społecznym, powstaje miejsce atrakcyjne dla młodych dorosłych i rodzin. Nowa zabudowa mieszkaniowa – w tym budynki z większymi lokalami 3- i 4-pokojowymi – stanowi ważne uzupełnienie tego modelu, umożliwiając rozwój stabilnej, rodzinnej społeczności i wpisując się w ideę miasta wygodnego do życia na co dzień.

Budynek Mieszkalny Wielorodzinny przy ul. Fundacyjnej 1/4 w Gdańsku

Działka przeznaczona pod budynek wielorodzinny stanowiła dotychczas część parku z placem zabaw i boiskiem do koszykówki. Graniczy on bezpośrednio z terenami rekreacyjnymi nad Opływem Motławy w okolicy Bastionu Wilk - nasypu ziemnego o charakterystycznym kształcie, będącego zabytkowym elementem XVII-wiecznych fortyfikacji Gdańska.

Budynek Mieszkalny Wielorodzinny przy ul. Fundacyjnej 1/4 w Gdańsku

Projektowany budynek jest skrajnym obiektem zamykającym zabudowę kwartałową i równocześnie barierą pomiędzy ulicą, a terenami zielonymi. Takie usytuowanie powoduje, że odcina on tereny zielone od dotychczasowego otoczenia i zagarnia je dla siebie. Jest to oczywiście sytuacja skrajnie niekorzystna z punktu widzenia okolicznych mieszkańców i pogarsza ona jakość przestrzeni miejskiej. Projekt został przemyślany tak, aby zminimalizować negatywne skutki inwestycji, a mieszkańcom dać coś w zamian. Na dachu zaprojektowano ogólnodostępną przestrzeń rekreacyjną z widokiem na zieleń otaczającą Opływ Motławy, rozciągającym się aż po rozległe tereny Żuław. Z drugiej strony zobaczymy panoramę historycznego centrum z dominującą wieżą Kościoła Mariackiego w Gdańsku Głównym.

Budynek Mieszkalny Wielorodzinny przy ul. Fundacyjnej 1/4 w Gdańsku

Wycięcie w parterze budynku umożliwia płynne przejście od ulicy Radnej do parku. Kształt łącznika podobny do dwóch klinów sprawia, że przestrzeń ta podświadomie wymusza do przepływu, a nie do gromadzenia się w niej, jest również lepiej dostępna wzrokowo. W efekcie powoduje poczucie większego bezpieczeństwa. Przeszklone klatki schodowe przecinają bryłę budynku na mniejsze części - wydaje się on mniej dominujący, ale także bardziej przezroczysty - idąc ulicą, zobaczymy park po drugiej stronie - i na odwrót. W wysokiej na 4 kondygnacje przestrzeni komunikacyjnej przewidziano utworzenie małpiego gaju dla dzieci. Rogi budynku zostały zaokrąglone, aby dodatkowo ułatwić ruch pieszym i zmiękczyć bryłę.

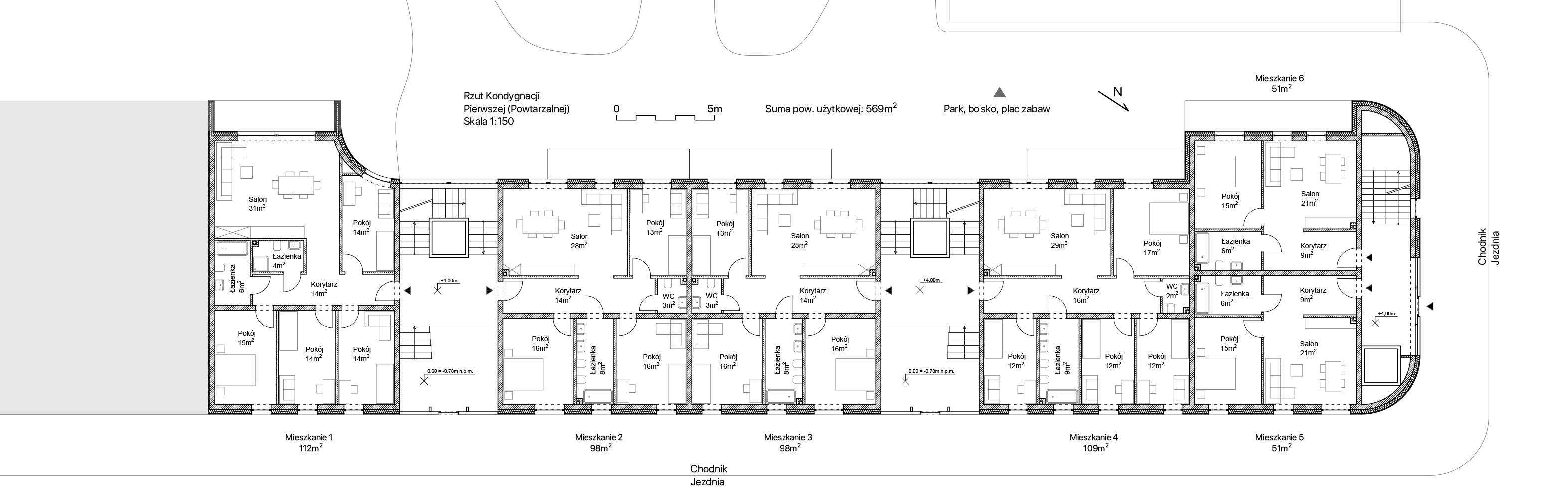
Budynek Mieszkalny Wielorodzinny przy ul. Fundacyjnej 1/4 w Gdańsku

Dwustronny układ mieszkań sprzyja efektywnej wentylacji krzyżowej. Możliwy jest przepływ powietrza pomiędzy pomieszczeniami, napędzany naturalną różnicą ciśnień po przeciwnych stronach budynku, wytworzoną wiatrem. Podwyższony jest komfort życia, a także ogranicza się korzystanie z klimatyzacji w ciepłe dni. Takie rozwiązanie ma szczególne znaczenie dla zdrowia mieszkańców oraz codziennego samopoczucia.

W mieszkaniach 3- i 4-pokojowych zastosowano funkcjonalny podział stref dziennych i nocnych zgodnie z kierunkami świata. Salony (living roomy) posiadają ekspozycję południowo-zachodnią, która zapewnia doświetlenie w godzinach popołudniowych i wieczornych. To właśnie wtedy mieszkańcy najczęściej spędzają czas w części dziennej – odpoczywając, spotykając się z rodziną czy przyjmując gości. Ciepłe, naturalne światło sprzyja budowaniu przytulnej atmosfery wnętrza. Sypialnie zlokalizowane są od strony północno-wschodniej, dzięki czemu pozostają chłodniejsze i mniej nasłonecznione w godzinach popołudniowych. Poranne światło sprzyja naturalnemu rytmowi dnia, ułatwiając łagodne budzenie się, natomiast ograniczone nagrzewanie pomieszczeń sprzyja komfortowemu wypoczynkowi nocnemu.

Budynek Mieszkalny Wielorodzinny przy ul. Fundacyjnej 1/4 w Gdańsku

Projekt ogólnodostępnej przestrzeni rekreacyjnej na dachu został poprzedzony szczegółową analizą warunków aerodynamicznych. Na etapie projektowym zbadano prędkość wiatru oraz zjawiska jego zawirowań, które w przypadku wyniesionych powierzchni mogą istotnie wpływać na komfort i bezpieczeństwo użytkowników. Na podstawie uzyskanych wyników określono optymalną wysokość barier przeciwwiatrowych montowanych ponad standardowymi balustradami, co pozwoliło skutecznie ograniczyć niekorzystne oddziaływanie podmuchów i turbulencji powietrza. W efekcie dach budynku staje się atrakcyjną, wspólną strefą rekreacyjną, sprzyjającą wypoczynkowi, spotkaniom sąsiedzkim i integracji okolicznych mieszkańców.

Budynek Mieszkalny Wielorodzinny przy ul. Fundacyjnej 1/4 w Gdańsku

Projekty

My

Blog

Kontakt